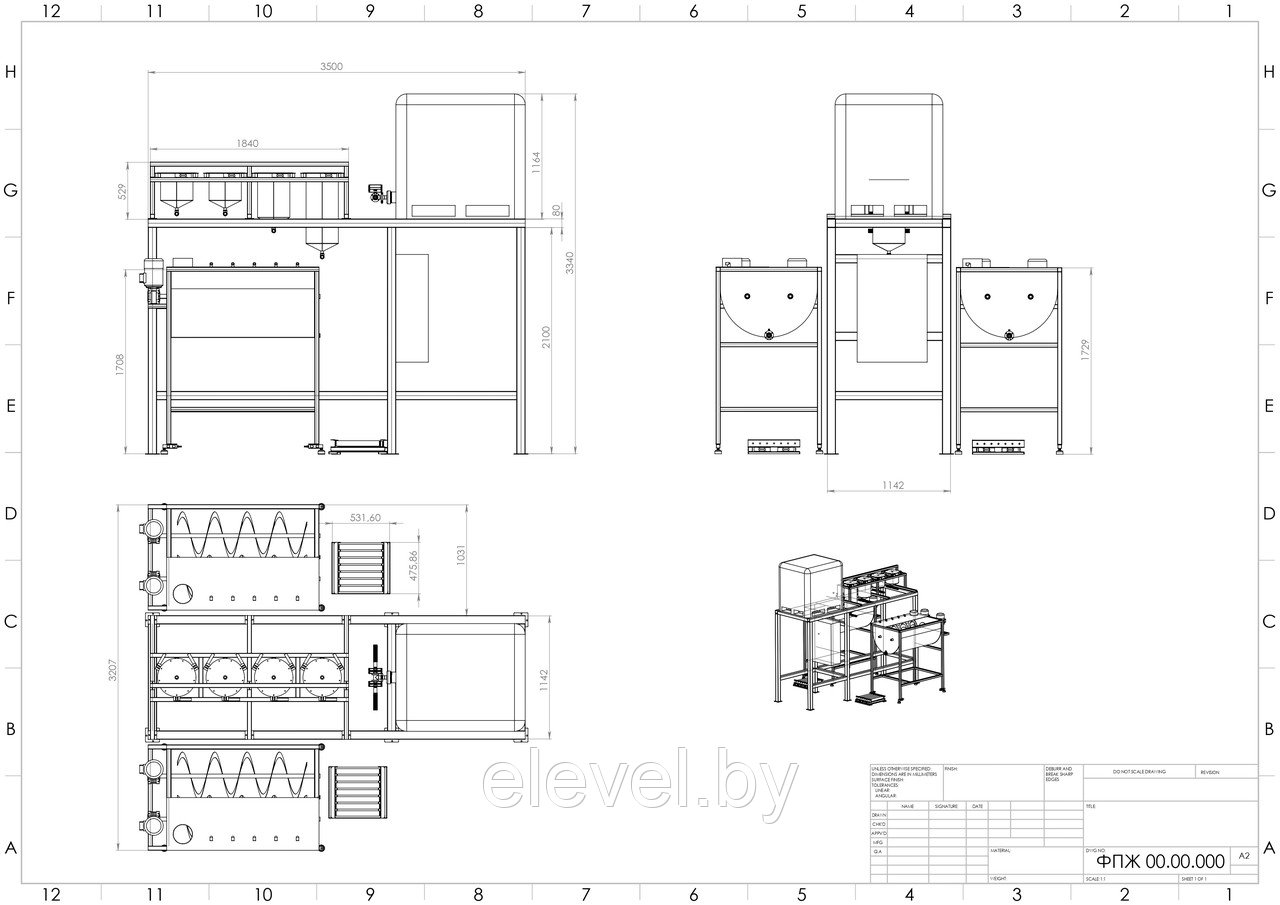
Описание
Установка приготовления и розлива эпоксидного компаунда ДЭА-500-СЖ-7 предназначена для последовательного дозирования 2-х (двух) сухих компонентов (микромрамор) из растаривателя при помощи 4(четырех) гибких шнековых транспортера, 4 (четырех) жидких компонентов (бензиловый спирт, диспергатор, пеногаситель, реологическая добавка), а так же Смолы из еврокуба в смесители №1 и №2, установленные на тензодатчики. Установка так же производит розлив готового компаунда в ведра, установленные на весовые роликовые столы.
| Наименование технической установки | Параметры |
| Класс точности весов по ГОСТ 10223-97 | 0.5 |
| Количество весовых платформ | 8 |
| Наибольший предел дозирования, кг | 500 |
| Наименьший предел дозирования, кг | 0,1 |
| Допускаемая погрешность , % | ±1-2 |
| Габариты установки (ВхШхД), мм. | 3500х1200х3500 |
| Количество тензодатчиков, шт | 20 |
| Объем емкостей, дм3 | 20-60 |
| Материал емкости и рамы установки | AISI 304 |
| Подача и Слив | Пневмоклапаны |
| Масса,кг. | 600 |
| Производительность, т/час | 0,5-1 |
|
Тех. характеристики Шкаф управления ШУ-63-54У3 |
|
| Питающая сеть | 3ф ~ 50 Гц 380В |
| Номинальная мощность, кВт | 30 |
| Ток расцепителя, А | 63 |
| Габариты ШУ (ВхШхГ), мм. | 1200х650х300 |
| Масса,кг. | 65 |
| Степень защиты защитной оболочки | IP54 |













